Bilocale in vendita

Sovere, Via Donizetti
€ 120.000
2 locali 2 locali
65 Mq 65 Mq
1 bagno 1 bagno

Bilocale in vendita

Sovere, Via Donizetti

Descrizione annuncio

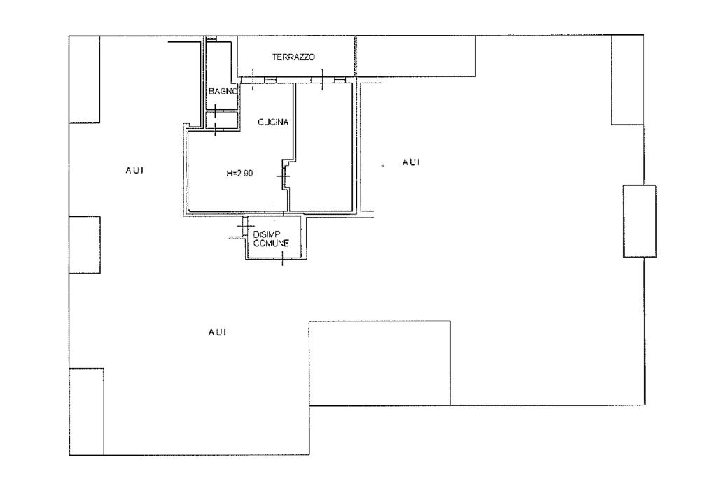
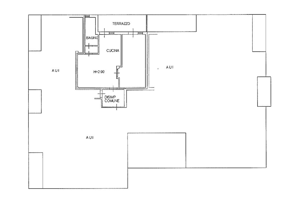
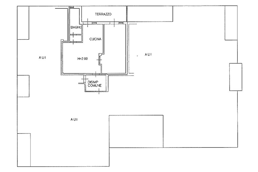
Nel comune di Sovere proponiamo in vendita un luminoso bilocale di 65 mq, ristrutturato nel 2019 e pronto per essere abitato.
Situato in zona centrale e servita, a pochi passi da negozi, supermercati, farmacia, scuole e fermata dell’autobus, l’appartamento si trova al primo piano di una palazzina civile servita da ascensore.

La disposizione interna comprende un ingresso con zona giorno open space, collegata a un balcone condiviso con la camera matrimoniale.

A completare gli spazi troviamo un bagno finestrato con doccia e sanitari sospesi, oltre a un comodo angolo lavanderia.

L’immobile è dotato di aria condizionata, serramenti con doppi vetri e tapparelle elettriche. Completano la proprietà un posto auto e una cantina riservata.

Soluzione ideale come abitazione principale, casa vacanza vicino al Lago d’Iseo o investimento.

Mostra tutto

Nelle vicinanze

Trasporto pubblico Trasporto pubblico
Sovere (monumento)
Sovere (monumento)
260 m
Sovere (bar Commercio)
Sovere (bar Commercio)
440 m
Scuole Scuole
Istituto Comprensivo Sovere Daniele Spada
350 m
Farmacia Farmacia
Farmacia
190 m
Supermercati Supermercati
Italmark
1,1 Km
Bar Bar
Bar-Pizzeria "Le Piante"
310 m
Bar Stella
3,0 Km
Bar
3,0 Km
Ristoranti Ristoranti
Pizzeria da Mirco
400 m
Ristoranti
2,6 Km
Ristorante La Baita
2,8 Km
Mostra tutto

Caratteristiche

Rif.:
61119374
Piano:
1 con ascensore (Piano basso)
Posti auto:
1
Terrazzi:
1
Camere da letto:
1
Arredamento:
Completo
Mostra tutto
Prezzo Prezzo
€ 120.000
Rata mutuo Rata mutuo
€ 565 / mese
Spese annue Spese annue
€ 1.000
Proponi il tuo prezzoProponi il tuo prezzo

Classe Energetica

D
D
D
D
D
D
D
D
D
EP globale non rinnovabile:
121.37 kW h/m² anno
EP invernale del fabbricato:
EP estiva del fabbricato:
Anno di costruzione:
1973
Riscaldamento:
Autonomo
Tipo impianto:
A radiatori
Tipo alimentazione:
Metano

Ti interessa visionare l'immobile?

Fissa un appuntamento  Fissa un appuntamento

Richiedi informazioni

Clicca su Leggi per aprire l'informativa
* Questi campi sono obbligatori

Calcola il tuo mutuo

Semplice e senza impegno
Anticipo

( % )
Mutuo

( % )

pochi semplici passi

inserisci i tuoi dati
Questionario completato
Grazie per aver richiesto un appuntamento senza impegno con un nostro Consulente del Credito e Assicurativo.

Hai inserito correttamente tutti i dati necessari e a breve riceverai una e-mail con un link da convalidare per inviare i tuoi dati.
Affiliato
Agenzia Imm.re Sebino Srl
Via Tadini, 32 24065 Lovere (BG)

Il nostro staff


  • Manuel Belotti
    Collaboratore

  • Luca Bettoni
    Collaboratore

  • Thomas Ferrari
    Collaboratore

  • Souad Fathi
    Coordinatrice

  • Matteo Ghiraldini
    Collaboratore

  • Andrea Galbassini
    Collaboratore

  • Alessia Piffari
    Responsabile

  • Alice Pezzoli
    Collaboratrice

  • Natale Scisciola
    Collaboratore

  • Sofia Semperboni
    Collaboratrice

  • Matteo Valenti
    Affiliato
Via Tadini, 32 24065 Lovere (BG)
Zona: Lovere-Costa Volpino-Rogno-Sovere-Solto Collina-Riva di Solto
Mostra su mappa
Orari: Dal Lunedì al venerdì 8.30 -12.30 /14.30-19.30 Sabato dalle 8.30-12.30 /14.30-17.00
Affiliato
Agenzia Imm.re Sebino Srl
Via Tadini, 32 24065 Lovere (BG)

2026 Tecnocasa Franchising S.p.A. - P. IVA 08365160152 - Via Monte Bianco 60/A 20089 Rozzano (MI). Ogni agenzia ha un proprio titolare ed è autonoma. Privacy policy | Policy utilizzo | Cookie policy