Trilocale in vendita

Solto Collina, Via Monte Adamello
€ 135.000
3 locali 3 locali
85 Mq 85 Mq
1 bagno 1 bagno

Trilocale in vendita

Solto Collina, Via Monte Adamello

Descrizione annuncio

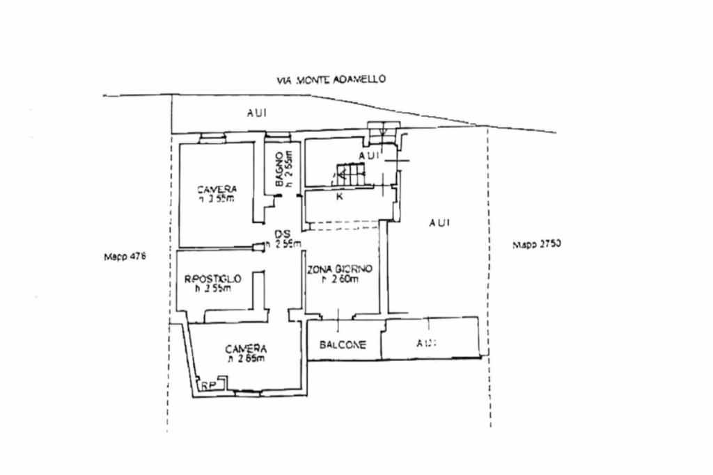
Appartamento di 85 mq situato al piano rialzato di una palazzina civile nel comune di Solto Collina.

La zona giorno è composta da soggiorno con accesso diretto al terrazzo. La zona notte include due camere da letto e un bagno.

L'immobile dispone inoltre un giardino privato, che rappresenta uno spazio esterno fruibile e personalizzabile.

Soluzione adatta sia come abitazione principale sia come seconda casa, inserita in un contesto residenziale tranquillo.

Completa la soluzione un'ampia cantina.

Mostra tutto

Nelle vicinanze

Trasporto pubblico Trasporto pubblico
Trasporto pubblico
2,3 Km
Sovere (Mano)
Sovere (Mano)
2,7 Km
Trasporto pubblico
1,5 Km
Ricariche auto elettriche Ricariche auto elettriche
Piangaiano SS42 | Ressolar
2,7 Km
Scuole Scuole
Scuole
300 m
Farmacia Farmacia
Farmacia
430 m
Supermercati Supermercati
Supermercati
530 m
Italmark
2,8 Km
Negozi Negozi
Negozi
420 m
Alimentari
1,2 Km
Bellavita
2,8 Km
Unes
2,8 Km
Bar Bar
Caffè del porto
1,5 Km
Il Bar
2,3 Km
Sara Bar
2,3 Km
Ristoranti Ristoranti
Al guelfo Negher
970 m
Ristorante Miranda
1,3 Km
Ristorante Pizzeria Bellavista
1,3 Km
Pizzeria del centro sportivo
1,4 Km
Ristoranti
1,6 Km
Mostra tutto

Caratteristiche

Rif.:
61186654
Piano:
1 di 2 (Piano rialzato)
Terrazzi:
1
Camere da letto:
2
Arredamento:
Completo
Condizionamento:
Assente
Mostra tutto
Prezzo Prezzo
€ 135.000
Rata mutuo Rata mutuo
€ 636 / mese
Spese annue Spese annue
€ 0
Proponi il tuo prezzoProponi il tuo prezzo

Classe Energetica

G
G
G
G
G
G
G
G
G
EP globale non rinnovabile:
314.95 kW h/m² anno
EP invernale del fabbricato:
EP estiva del fabbricato:
Anno di costruzione:
1964
Riscaldamento:
Autonomo
Tipo impianto:
A radiatori
Tipo alimentazione:
Metano

Ti interessa visionare l'immobile?

Fissa un appuntamento  Fissa un appuntamento

Richiedi informazioni

Clicca su Leggi per aprire l'informativa
* Questi campi sono obbligatori

Calcola il tuo mutuo

Semplice e senza impegno
Anticipo

( % )
Mutuo

( % )

pochi semplici passi

inserisci i tuoi dati
Questionario completato
Grazie per aver richiesto un appuntamento senza impegno con un nostro Consulente del Credito e Assicurativo.

Hai inserito correttamente tutti i dati necessari e a breve riceverai una e-mail con un link da convalidare per inviare i tuoi dati.
Affiliato
Agenzia Imm.re Sebino Srl
Via Tadini, 32 24065 Lovere (BG)

Il nostro staff


  • Manuel Belotti
    Collaboratore

  • Luca Bettoni
    Collaboratore

  • Thomas Ferrari
    Collaboratore

  • Souad Fathi
    Coordinatrice

  • Matteo Ghiraldini
    Collaboratore

  • Andrea Galbassini
    Collaboratore

  • Alessia Piffari
    Responsabile

  • Alice Pezzoli
    Collaboratrice

  • Natale Scisciola
    Collaboratore

  • Sofia Semperboni
    Collaboratrice

  • Matteo Valenti
    Affiliato
Via Tadini, 32 24065 Lovere (BG)
Zona: Lovere-Costa Volpino-Rogno-Sovere-Solto Collina-Riva di Solto
Mostra su mappa
Orari: Dal Lunedì al venerdì 8.30 -12.30 /14.30-19.30 Sabato dalle 8.30-12.30 /14.30-17.00
Affiliato
Agenzia Imm.re Sebino Srl
Via Tadini, 32 24065 Lovere (BG)

2026 Tecnocasa Franchising S.p.A. - P. IVA 08365160152 - Via Monte Bianco 60/A 20089 Rozzano (MI). Ogni agenzia ha un proprio titolare ed è autonoma. Privacy policy | Policy utilizzo | Cookie policy